Space in Order is having several ongoing projects for office spaces that already have some basic furnitures but would like to make it more cosy, create a more welcoming and complete office, both for employees but also for customers, and also to integrate the branding in the interior design. The needs can also be, for example, improvement of acoustics, egonomy and getting in more vegetation and plants for the air.
To make sure we understand the customers requirements and desires we create moodboards and layouts to show a vision before then coming back with a detailed proposal of furnitures and solutions that also needs to fit into the customers budget.
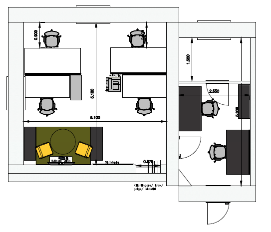
Cutting of some Layouts:

Cutting of some moodboards:










